Ficha
Piso para estrenar de 3 dormitorios en El Pla del Remei en venta
Valencia - REF. 2558

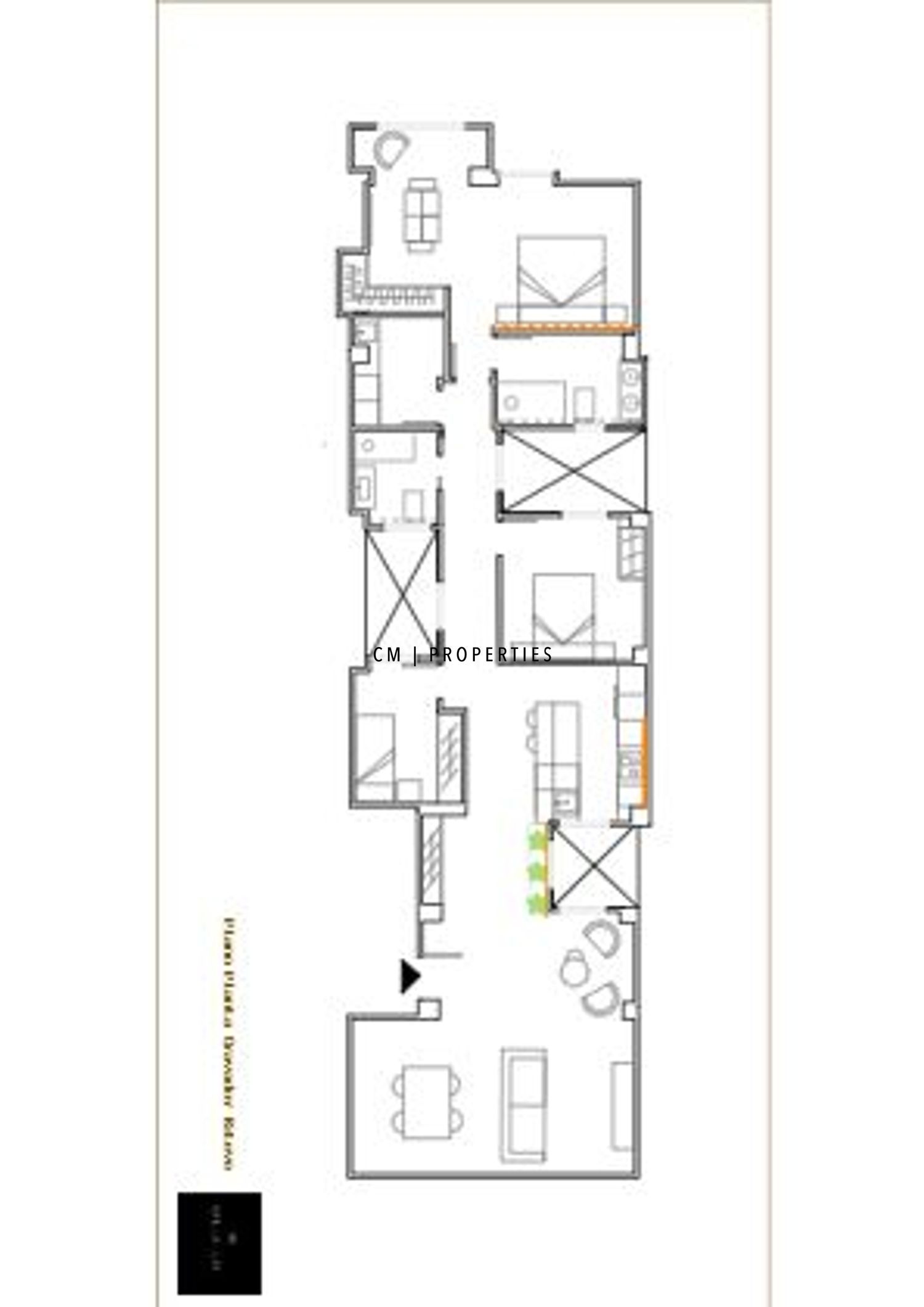
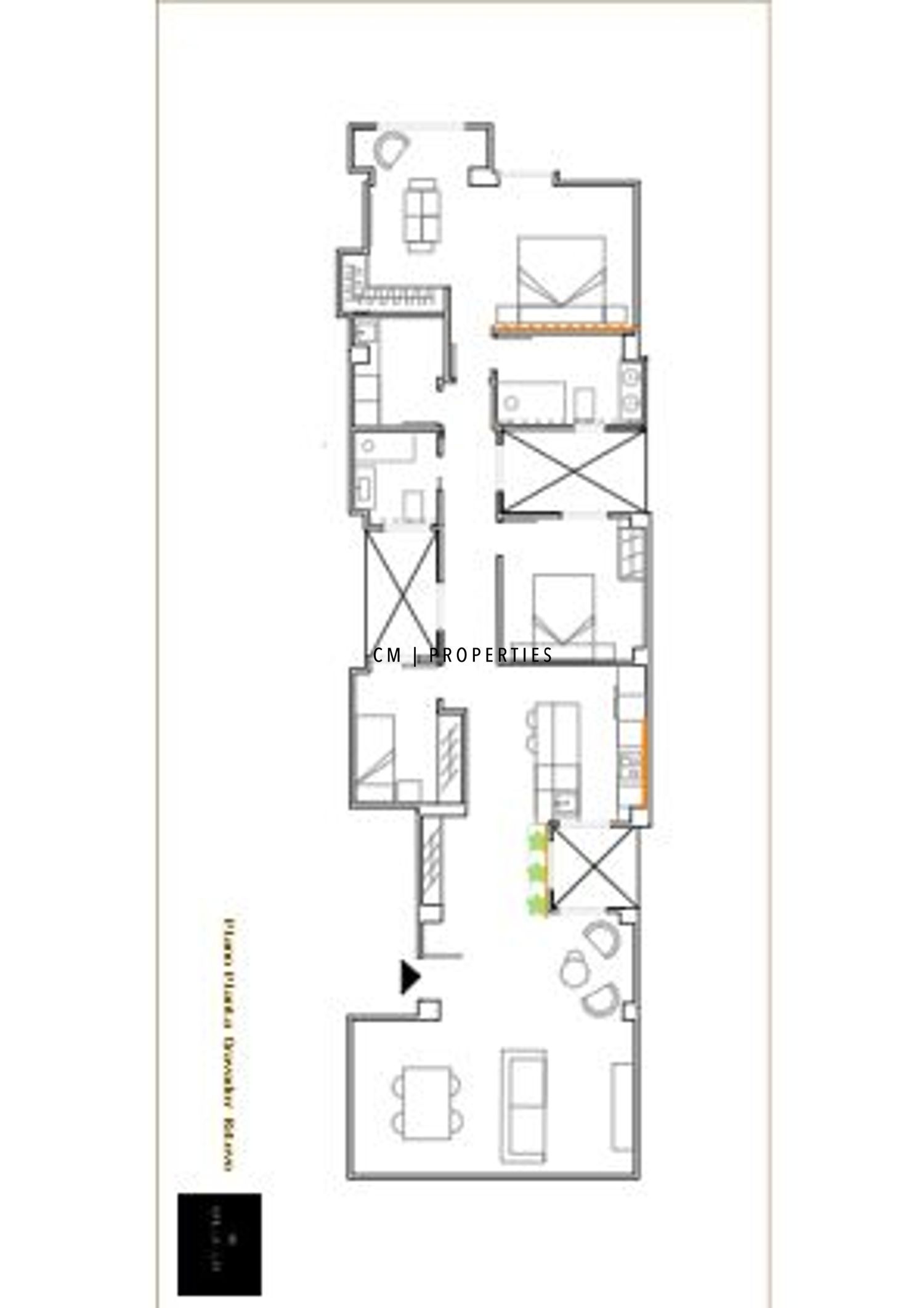
158 m2

3

2

1
venta: 950.000 €
antes: 999.000 €
Descripción

CM Properties presenta exclusiva vivienda en reforma en la Casa del Cónsul (1914), obra de Javier Goerlich

Esta elegante propiedad, se sitúa en la primera planta de un edificio histórico y emblemático: la Casa del Cónsul, proyectada en 1914 por el reconocido arquitecto Javier Goerlich.

La vivienda ofrece una distribución moderna y funcional con 3 habitaciones y 2 baños (uno en suite), organizados en un concepto semiabierto que aporta amplitud y luminosidad a los espacios.

Entre sus calidades destacan:

- Aire acondicionado por conductos (frío/calor).

- Armarios empotrados.

- Carpintería exterior de PVC.

- Suelo de madera natural en espiga.

- Electrodomésticos integrados de última generación.

Ubicada en pleno corazón del Pla del Remei, junto a la Gran Vía Marqués del Turia, esta vivienda se encuentra a escasos metros del Mercado de Colón, rodeada de edificios modernistas, restaurantes de alta gama, boutiques exclusivas, parques y los jardines del río Turia.

Una ubicación privilegiada que combina la tranquilidad de un barrio residencial de prestigio con la vitalidad del centro de Valencia y unas excelentes conexiones de transporte.

Una opción ideal tanto para familias que buscan amplitud y confort como para profesionales que desean disfrutar de un entorno exclusivo, con todas las comodidades modernas y el encanto único de la arquitectura histórica.

Este anuncio tiene carácter meramente orientativo. Para obtener información exacta sobre las condiciones del alquiler o venta y características detalladas de la vivienda, por favor, contacte telefónicamente.

Características
Precio Venta 950.000 €
Año de construcción 1925
Construidos 158 m2
Precio/m² 6.013
Dormitorios 3
Baños 2
Cocina Amueblada
Trastero
Altura/Planta 1
Estado A estrenar
Ascensor
Aire acondicionado
Calificación Energética (D) VER
Luz
Agua
Escalas de eficiencia


-
-

Tu agente
Lisa Sulzhenko (Venta)
Contáctanos

Si deseas más información sobre esta propiedad, por favor, rellena el formulario.

 Sí, he leído y/o acepto las Condiciones de uso y la Política de privacidad
Inmuebles similares:
 
840.000 €
Ref. 2457  140 m2  3
Piso en venta en Valencia, con 140 m2, 3 habitaciones Ascensor, Aire acondicionado y Calefacción Electrica.
 
765.000 €
Ref. 2757  156 m2  4  2
Piso en venta en Valencia, con 156 m2, 4 habitaciones y 2 baños, Piscina, Garaje, Trastero, Ascensor, Aire acondicionado y Calefacción Gas natural central.